聯系我們
For More Information Call
0577-27880030
1.1 ZGS11-Z.F-□/□系列風力發電用組合式變壓器(以下簡稱“風力變”)。適用于10kV、35kV終端供電系統中,作為變電、配電、計量、控制和保護裝置。風力變內除裝有變壓器外,高壓側還裝有四
位負荷開關或者二工位負荷開關、后備保護熔斷器及插入式熔斷器:低壓側按用戶要求可裝配控制電器、配電電器、照明檢修變壓器。以變壓器油作為絕緣和滅弧介質。
1.2 本產品是滿足日益增長的風力發電的供電要求,在本公司常規組合式變壓器基礎上消化吸收好的技術結合國內需求自行開發的系列產品,該產品具有體積小、重量輕、安裝方便、低噪聲、低損耗、防盜、過負荷能力大、全范圍熔斷器保護、維護簡單等特點。
1.3 本產品除滿足各自元件有關標準外,還符合JB/T10217-2000《組合式變壓器》。
使用環境條件
3.1 海拔高度:不超過3000m;
3.2 環境溫度:-40℃~+45℃;
3.3 風速:不超過70m/s;
3.4 污穢等級:不超過Ⅳ級;
3.5 安裝場所:無爆炸危險、化學腐蝕和劇烈振動;
3.6 安裝在水泥平臺或其它平整、堅實的平臺上;
3.7 空氣自冷(AN);
4.1 風力變技術參數
4.2 負荷開關技術參數
4.3 熔斷器技術參數
4.4 低壓裝置
風力變低壓側按用戶要求可具有失壓、欠壓保護功能,當高壓缺相時,低壓側能自動跳閘。按用戶要求,低壓側也可裝配電電器,控制電器、照明檢修變壓器等。另外也可具有遙測、遙訊功能。由于風力發電用組合式變壓器所處的環境惡劣,低壓主斷路器采用低溫型斷路器,有低溫實驗報告。其低溫實驗報告的技術參數為:
低溫試驗:試驗溫度-40±3℃,持續時間16h
低溫操作性能:120次,30次/小時


10kV風力變外形尺寸
注:表中重量及 外形尺寸 數據僅供參考,若有更改恕不另行通知。
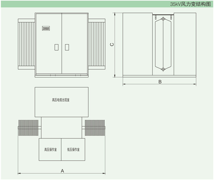
35kV風力變外形尺寸
注:表中重量及 外形尺寸 數據僅供參考,若有更改恕不另行通知。
安裝與討調度7.1 驗收
產品到位后,應檢查銘牌數據與訂貨合同是否相符;對照裝箱發貨清單檢查附件是否齊全;檢查運輸過程中是否有撞傷、贓物、異物,同時清除運輸輔助物;對不立即投入使用的風力變,應鎖好柜門,放置于安全地帶。
7.2 安裝平臺
風力變應安裝在水平混凝土臺面上,臺面應保證承受其重量。
訂貨時應注明:
8.1 產品型號、規格、數量;
8.2 低壓側方案圖;
8.3 備品配件名稱及數量;
8.4 地基圖訂貨合同提供。


